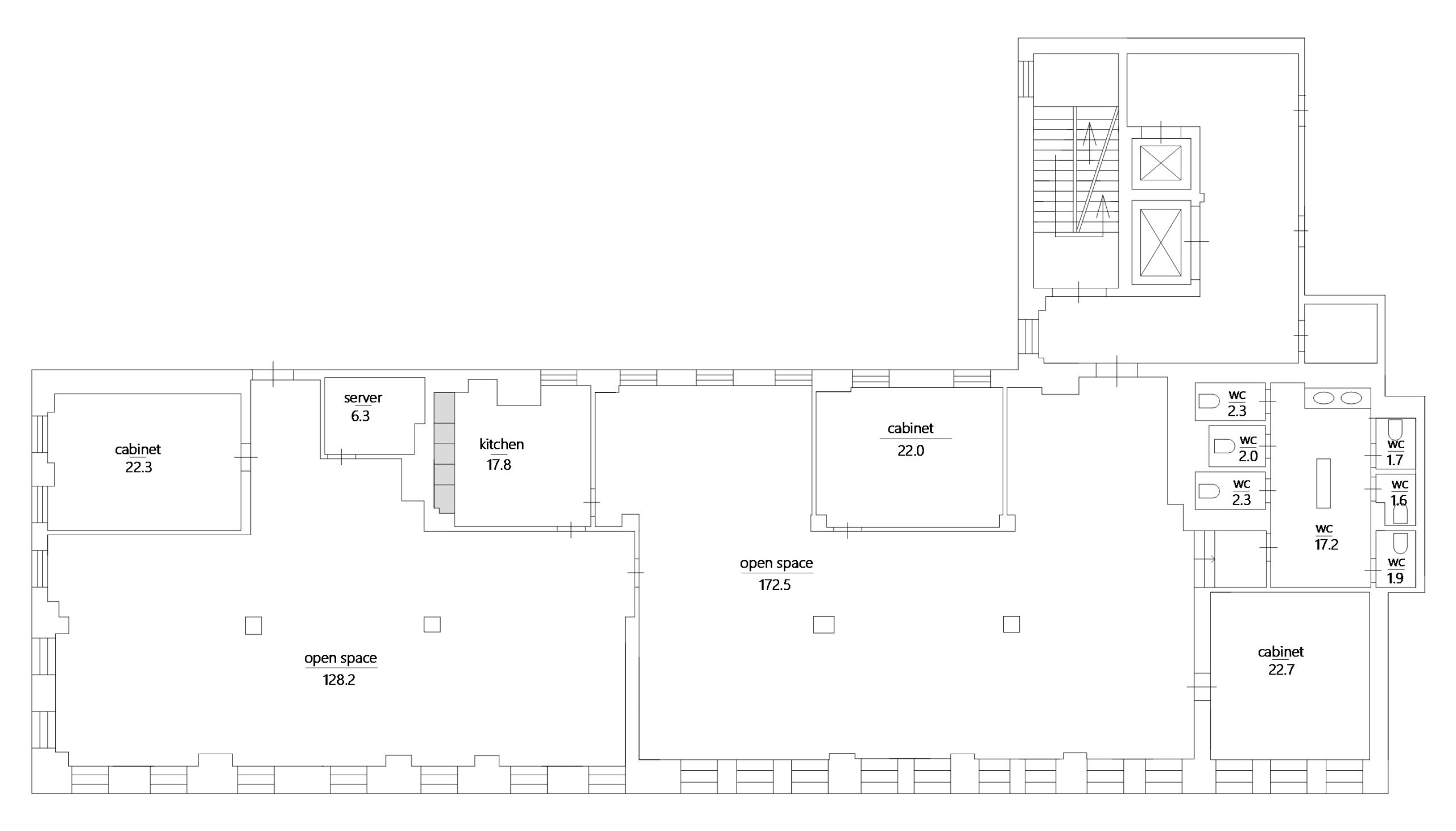
425,5 sq m

5 floor

Fire and security alarm
Air conditioning and ventilation system
Centralized heating
The floor covering is a laminate
The technical condition of the premises is ready for occupation

Pricing policy

$ price by agreement

Room planning

Would you like to download a presentation, photo or layout?

Have a question?

Contact us on social networks or call us

    Request a call

    Fill out the form and we will call you back in 60 seconds!